Установка повышения давления Hydro MPC-E 3 CRE15-5 U2 D-A-A-GHV, Grundfos
Артикул: 99209283
1 603 938 руб.
-
+
Купить
Купить в 1 клик
Срок поставки по запросу
Описание
HYDRO MPC-E 3 CRE15-5
Система повышения давления, в соответствии со стандартом DIN 1988/T5.
Скорость всех насосов регулируется.
Начиная от 0,37 и до 22 кВт, все станции оснащены насосами CR, CRE, с двигателями со встроенным преобразователем частоты и высокоэффективными постоянными магнитами. Общий КПД этих электродвигателей лучше, чему у двигателей соответствующих стандарту IE4 по IEC60034-31, хотя данный стандарт применяется только для электродвигателей.
От 3 до 22 кВт станции оснащены насосами CR, CRE, со встроенными преобразователями частоты. Общий КПД этих электродвигателей, в том числе с преобразователем частоты, выше класса IE3 по IEC60034-31, хотя данный стандарт применяется только для электродвигателей.
Hydro MPC-E поддерживает постоянное давление с помощью непрерывного контроля частоты вращения насосов.
Производительность системы устанавливается в соответствии с требованием посредством включения/выключения необходимого количества насосов и с помощью параллельного управления эксплуатируемыми насосами.
Переключение насосов автоматическое и зависит от нагрузки, времени и возникновения неисправности.
Система включает в себя:
Детали насосов, соприкасающиеся с перекачиваемой жидкостью изготовлены из нержавеющей стали согласно EN DIN 1.4301. Основания и напорные части насосов - из чугуна EN-GJS-500-7 (CR); остальные основные детали и соединения изготовлены из нержавеющей стали согласно EN DIN 1.4301. Насосы снабжены простым в обслуживании картриджным торцевым уплотнением вала HQQE (SiC/SiC/EPDM).
Два патрубка из нержавеющей стали EN DIN 1.4571.
Опорная рама из нержавеющей стали EN DIN 1.4301 до CR 90; от CR 90 насосы размещаются на оцинкованной раме I-Beam.
Один обратный клапан (POM) и два запорных клапана для каждого насоса.
Обратные клапаны аттестованы по DVGW, запорные клапаны по DIN и DVGW.
Переходник с запорным клапаном для подсоединения к мембранному баку.
Манометр и датчик давления (аналоговый выход 4 - 20 мА).
Шкаф Control MPC в стальном корпусе, IP54, включая главный переключатель, все необходимые плавкие предохранители, защита двигателя, коммутационное оборудование и микропроцессорный контроллер CU 352.
Система защиты от сухого хода и мембранный бак поставляются как неотделимая часть системы.
Управление работой насосов осуществляется с помощью Control MPC, который обладает следующими функциями:
Мульти-контроллер насосов, CU 352.
Постоянное регулирование давления с помощью непрерывной настройки переменных частоты вращения каждого насоса в отдельности.
Контроллер PID с устанавливаемыми параметрами PI (Kp+Ti).
Постоянное давление при установленном значении, не зависящее от давления на входе.
Включение / выключение работы при малом расходе жидкости.
Автоматическое каскадное управление насосами для достижения оптимального КПД.
Выбор мин. времени между пуском/остановом, автоматическое переключение насосов и определение очерёдности включения насосов.
Автоматический пробный пуск насосов, находящихся в резерве: гарантирует запуск
насосов после долгого простоя.
Возможно переподключение резервных насосов.
Резервный датчик давления (в случае выхода из строя первого датчика).
Работа в ручном режиме.
Внешнее управление установленными значениями.
Запись рабочей диаграммы
Ограничение установленного значения в пределах
Функции цифрового дистанционного управления:
включение/выключение системы
макс., мин. или определяемый пользователем режимы
до 6 альтернативных установленных значений.
Цифровые входы и выходы можно конфигурировать по отдельности.
Функции контроля насоса и системы:
минимальные и максимальные пределы текущей величины
давление на входе
защитные устройства двигателя.
Проверка датчиков и кабелей на предмет неисправностей.
Журнал регистрации аварий, где зафиксированы последние 24 аварийных сигнала.
Функции дисплея и индикации:
Цветной экран
зелёный световой индикатор для обозначения рабочего состояния и красный для обозначения неисправностей
перекидные контакты с нулевым потенциалом для работы и неисправности.
Коммуникация через шину связи Grundfos Bus.
Можно добавлять модули CIM связи для общения по Scada / BMS.
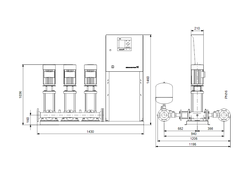
Насосы, трубопровод, кабели в комплекте, а также шкаф Control MPC, установлены на раму-основание. Установка повышения давления была испытана и имеет предварительные настройки.
Средний расход: Вода
Допустимая средняя температура: 5 °C .. 60 °C
Макс. рабочее давление: 16 бар
Подача (Установка): 85 м³/ч
Напряжение сети: 380-415 В
Номинальный ток в установке: 45,0A-380V
Номинальная мощность: 7.5 кВт
Нетто вес: 409 кг
Система повышения давления, в соответствии со стандартом DIN 1988/T5.
Скорость всех насосов регулируется.
Начиная от 0,37 и до 22 кВт, все станции оснащены насосами CR, CRE, с двигателями со встроенным преобразователем частоты и высокоэффективными постоянными магнитами. Общий КПД этих электродвигателей лучше, чему у двигателей соответствующих стандарту IE4 по IEC60034-31, хотя данный стандарт применяется только для электродвигателей.
От 3 до 22 кВт станции оснащены насосами CR, CRE, со встроенными преобразователями частоты. Общий КПД этих электродвигателей, в том числе с преобразователем частоты, выше класса IE3 по IEC60034-31, хотя данный стандарт применяется только для электродвигателей.
Hydro MPC-E поддерживает постоянное давление с помощью непрерывного контроля частоты вращения насосов.
Производительность системы устанавливается в соответствии с требованием посредством включения/выключения необходимого количества насосов и с помощью параллельного управления эксплуатируемыми насосами.
Переключение насосов автоматическое и зависит от нагрузки, времени и возникновения неисправности.
Система включает в себя:
Детали насосов, соприкасающиеся с перекачиваемой жидкостью изготовлены из нержавеющей стали согласно EN DIN 1.4301. Основания и напорные части насосов - из чугуна EN-GJS-500-7 (CR); остальные основные детали и соединения изготовлены из нержавеющей стали согласно EN DIN 1.4301. Насосы снабжены простым в обслуживании картриджным торцевым уплотнением вала HQQE (SiC/SiC/EPDM).
Два патрубка из нержавеющей стали EN DIN 1.4571.
Опорная рама из нержавеющей стали EN DIN 1.4301 до CR 90; от CR 90 насосы размещаются на оцинкованной раме I-Beam.
Один обратный клапан (POM) и два запорных клапана для каждого насоса.
Обратные клапаны аттестованы по DVGW, запорные клапаны по DIN и DVGW.
Переходник с запорным клапаном для подсоединения к мембранному баку.
Манометр и датчик давления (аналоговый выход 4 - 20 мА).
Шкаф Control MPC в стальном корпусе, IP54, включая главный переключатель, все необходимые плавкие предохранители, защита двигателя, коммутационное оборудование и микропроцессорный контроллер CU 352.
Система защиты от сухого хода и мембранный бак поставляются как неотделимая часть системы.
Управление работой насосов осуществляется с помощью Control MPC, который обладает следующими функциями:
Мульти-контроллер насосов, CU 352.
Постоянное регулирование давления с помощью непрерывной настройки переменных частоты вращения каждого насоса в отдельности.
Контроллер PID с устанавливаемыми параметрами PI (Kp+Ti).
Постоянное давление при установленном значении, не зависящее от давления на входе.
Включение / выключение работы при малом расходе жидкости.
Автоматическое каскадное управление насосами для достижения оптимального КПД.
Выбор мин. времени между пуском/остановом, автоматическое переключение насосов и определение очерёдности включения насосов.
Автоматический пробный пуск насосов, находящихся в резерве: гарантирует запуск
насосов после долгого простоя.
Возможно переподключение резервных насосов.
Резервный датчик давления (в случае выхода из строя первого датчика).
Работа в ручном режиме.
Внешнее управление установленными значениями.
Запись рабочей диаграммы
Ограничение установленного значения в пределах
Функции цифрового дистанционного управления:
включение/выключение системы
макс., мин. или определяемый пользователем режимы
до 6 альтернативных установленных значений.
Цифровые входы и выходы можно конфигурировать по отдельности.
Функции контроля насоса и системы:
минимальные и максимальные пределы текущей величины
давление на входе
защитные устройства двигателя.
Проверка датчиков и кабелей на предмет неисправностей.
Журнал регистрации аварий, где зафиксированы последние 24 аварийных сигнала.
Функции дисплея и индикации:
Цветной экран
зелёный световой индикатор для обозначения рабочего состояния и красный для обозначения неисправностей
перекидные контакты с нулевым потенциалом для работы и неисправности.
Коммуникация через шину связи Grundfos Bus.
Можно добавлять модули CIM связи для общения по Scada / BMS.
Насосы, трубопровод, кабели в комплекте, а также шкаф Control MPC, установлены на раму-основание. Установка повышения давления была испытана и имеет предварительные настройки.
Средний расход: Вода
Допустимая средняя температура: 5 °C .. 60 °C
Макс. рабочее давление: 16 бар
Подача (Установка): 85 м³/ч
Напряжение сети: 380-415 В
Номинальный ток в установке: 45,0A-380V
Номинальная мощность: 7.5 кВт
Нетто вес: 409 кг
Характеристики
| Бренд: | Grundfos |
| Напряжение сети, В: | 380 / 500 |
| Номинальный расход, м3/ч: | 20 |
| Максимальный напор, м: | 102 |
| Номинальный напор, м: | 81.81 |
| Назначение: | промышленный |
| Серия: | Hydro MPC-E |
| Тип подключения: | фланец |
| Температура перекачиваемой жидкости, °C: | +5 ... +60 |
| Потребляемая мощность, Вт: | 7 500 |
| Давление максимальное, бар: | 16 |
| Расход максимальный, м3/ч: | 85 |
| Диаметр подключения, мм: | 100 мм (4") |
| Материал корпуса: | чугун |
| Материал рабочего колеса: | нержавеющая сталь |
| Частота вращения двигателя, об/мин: | 3450 |
| Качество жидкости: | чистая |

