Установка повышения давления Hydro MPC-F 3 CR 45-3, Grundfos
Описание
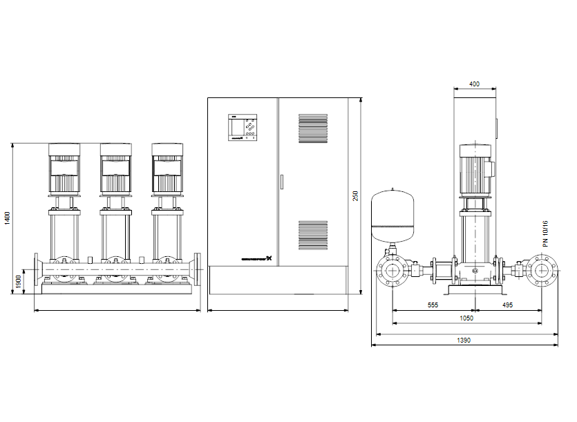
Hydro MPC – это комплектная высокотехнологичная насосная станция повышения давления, полностью готовая к эксплуатации.
Станция Hydro MPC производится на базе вертикальных многоступенчатых насосов CR(E) со встроенным частотным преобразователем. Управление станцией осуществляется в автоматическом режиме посредством шкафа управления Control MPC с контроллером CU352. Благодаря интеллектуальной системе управления станция быстро адаптируется к текущим потребностям системы и всегда работает в точке наивысшего КПД, что обеспечивает стабильную подачу и минимальный расход электроэнергии в постоянно изменяющихся условиях эксплуатации.
Высочайшая энергоэффективность, проверенная надежность, уникальная система управления, а также простота монтажа и эксплуатации делают эту станцию непревзойденным лидером в своем классе и, тем самым, предопределяют выбор профессионалов!
Начиная с 2013 года станции повышения давления Hydro MPC комплектуются обновленными насосами CRE c электродвигателями MGE, призванными стать эталонами энергоэффективности!
Насосы CRE мощностью от 0,37 до 2,2 кВт оснащены совершенно новыми электродвигателями MGE, индекс энергоэффективности которых соответствует классу IE4, что выделяет эти насосы среди конкурентов.
Насосы CRE мощностью от 3 до 22 кВт оснащены модернизированными электродвигателями MGE с увеличенной частотой вращения до 3450 об/мин, что позволяет подобрать насосную станцию с электродвигателями меньшего типоразмера под заданную рабочую точку, и, тем самым, уменьшить общие габариты установки.
ПРИМЕНЕНИЕ:
Бизнес-центры;
Торговые центры;
Медицинские учреждения;
Образовательные учреждения;
Промышленные предприятия;
Жилые комплексы.
ПРЕИМУЩЕСТВА:
Высокая энергоэффективность;
Проверенная надежность;
Легкость монтажа и эксплуатации;
Широкие функциональные возможности;
Интеллектуальная система управления.

